Western Ridge Homes

Covering construction from the ground up in Southern Colorado.

Skip the Renovations—Move Into Perfection

New Move-in Ready Homes in Pueblo West, CO

AI Render. Final colors and landscaping may vary

3 Bedrooms / 2 Bathrooms

  • Large walk-in Master Closet

  • Large Laundry & Mud Rooms

  • Open Concept Design

  • Vaulted Ceilings

  • Over-sized 3 Car Garage (Drywalled)

For Sale $414,900

Move-in Ready Mid-May 2026

Photos from previous build. Colors & landscaping will vary

3 Bedrooms / 2 Bathrooms

  • Large walk-in Master Closet

  • Large Laundry & Mud Rooms

  • Open Concept Design

  • Vaulted Ceilings

  • Over-sized 3 Car Garage (Drywalled)

For Sale $479,900

Move-in Ready June 2026

Photo from previous build. Colors & landscaping will vary

3 Bedrooms / 2 Bathrooms

  • Large walk-in Master Closet

  • Large Laundry & Mud Rooms

  • Open Concept Design

  • Vaulted Ceilings

  • Over-sized 3 Car Garage (Drywalled)

For Sale $449,000

Move-in Ready late June

AI Render. Colors & landscaping will vary

2 Bedrooms / 2 Bathrooms

  • Walk-in Closets

  • Laundry Room

  • Walk-in Pantry

  • 1,113 sq ft | .40 Acre Lot

  • Upgraded Insulation

  • Over-sized 3 Car Garage (Drywalled)

For Sale $359,000

Ready July

From Blue Print to Breakthrough

A Modern Design Asethic Home story board with finishes, color pallet, tile and countertops
  • Modify Our Models: Start with our signature high-efficiency designs and customize the finishes to match your style.

  • Fully Custom Builds: Bring your own plans or start from scratch. We specialize in turning "exact specifications" into overbuilt realities.

  • The WRH Difference: 20+ years of expertise ensuring your custom build is as efficient as it is elegant.

Ready to see your floor plan come to life?

Why choose Western Ridge Homes as your custom home builder?

Most builders meet the code. We treat the code as a starting point, not the finish line. Our "overbuilt" philosophy ensures your investment is protected by superior structural engineering and premium materials that others consider "upgrades."

  • Reinforced Foundations: Engineered for stability that spans generations.

  • Advanced Framing: Precision-cut timber and steel for structurally sound construction.

  • Superior Sound Dampening: Strategic insulation, solid doors, and thick-wall construction for privacy from room to room.

  • Next-Gen Insulation: Airtight envelopes that maintain the perfect temperature while slashing energy costs

  • Modern Design: Open-concept layouts designed for the flow of modern life.

Recently SOLD

3 Bedrooms / 2 Bathrooms

  • Large walk-in Master Closet

  • Large Laundry & Mud Rooms

  • Quartz countertops throughout

  • Over-sized 3 Car Garage

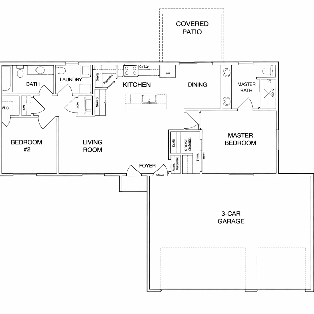
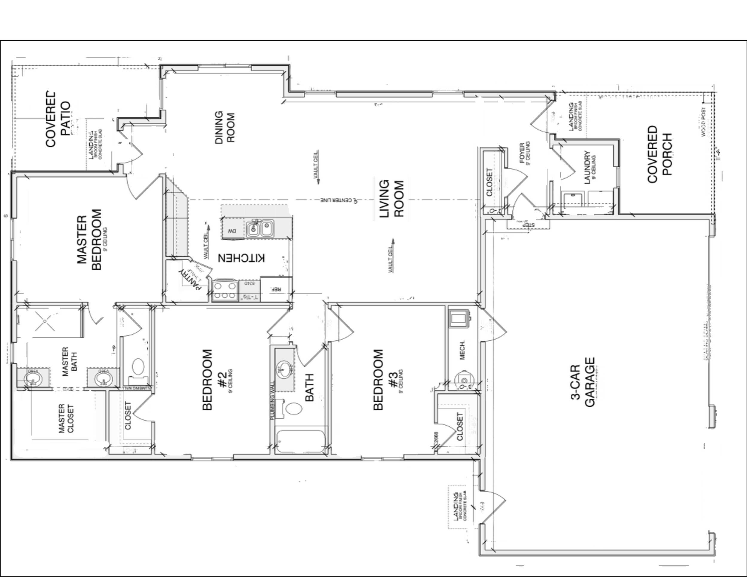
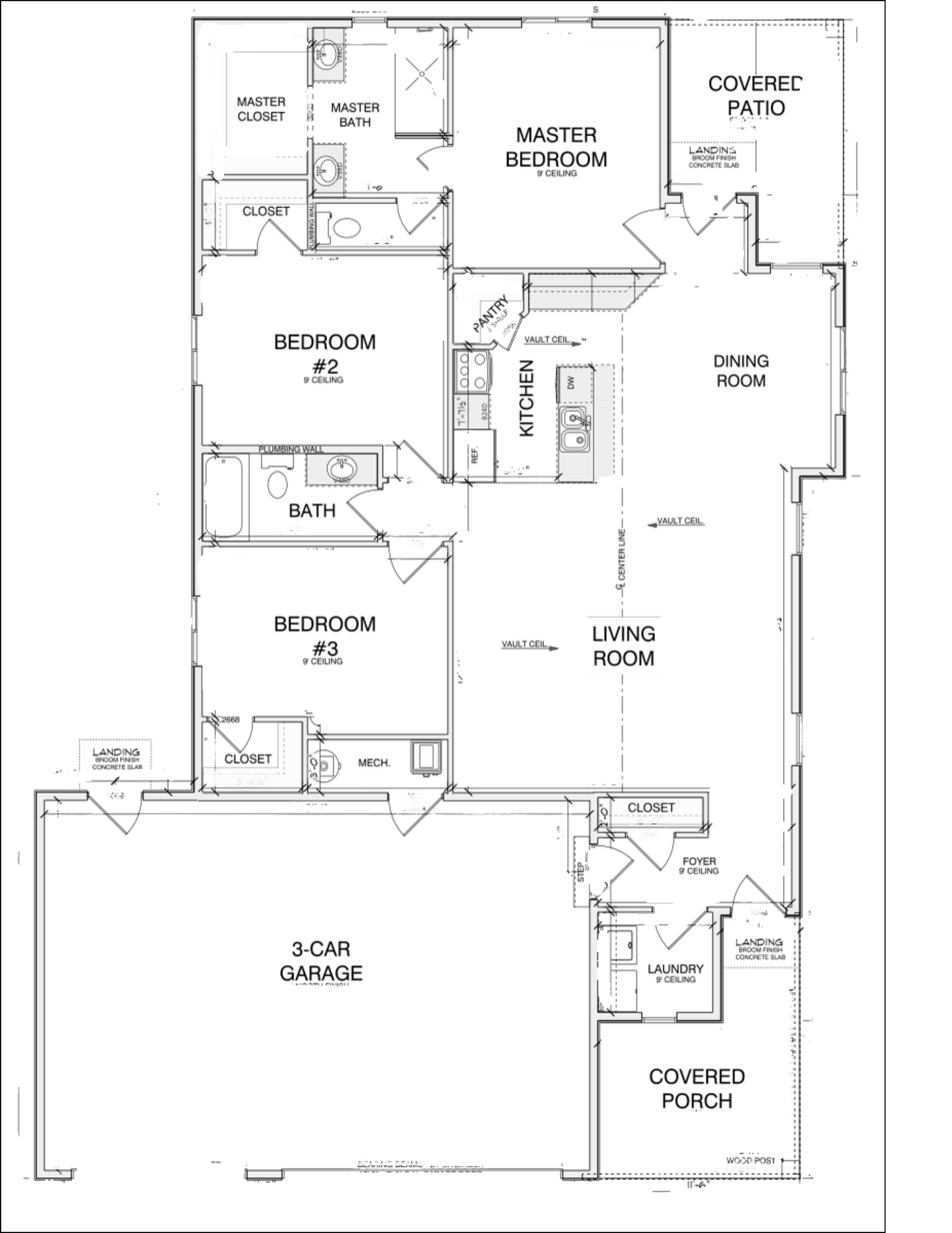
Divide Model

Deatiled floor plan of the Divide model, a three bed two bathroom spec home

1752 sq ft | XL 3 Car Garage | Paved Road

3 Bedrooms / 2 Bathrooms

Divide Model

Why Buy New?

Why a New Construction Home is the Right Move:

  • Move-In Ready & Low Maintenance: Enjoy the peace of mind that comes with brand-new roofing, HVAC systems, and high-efficiency appliances. Spend your weekends living, not DIY-ing.

  • Superior Energy Efficiency: Experience lower utility bills from day one. Our modern insulation and construction techniques are designed to keep your home comfortable and cost-effective.

  • Modern, Thoughtful Layouts: Designed for the way we live today, our homes feature "split-wing" and open-concept floor plans that offer more natural light and better flow than older properties.

  • Built Beyond the Standard: Every Western Ridge home is built to exceed current building codes. You can rest easy knowing your home isn’t just "up to code"—it’s overbuilt for lasting durability.